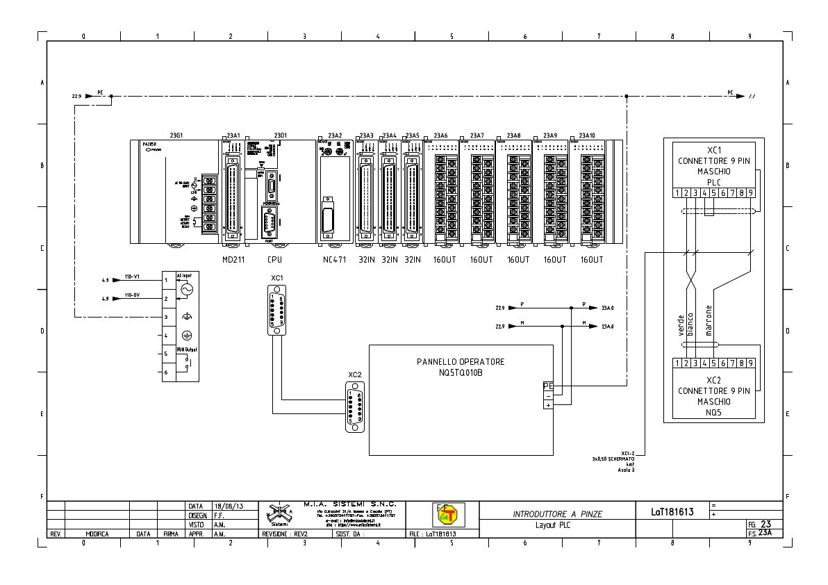
Esempio di progetto di schema elettrico per pannello di introduttore a pinze.
Esempio di progetto di schema elettrico di connettore esterno.
Esempio di progetto di pannello operatore per controllo di impianto galvanico.
Esempio di progetto di schema elettrico di controllo di una pompa.
Descrizione del lavoro
Durante lo svolgimento di tutti i lavori di retrofit e di manutenzione di macchine industriali, realizziamo un progetto dell’impianto elettrico, prima dell’effettiva realizzazione.
